List Your Property
`
Wang Cheong Enterprises Centre

Wang Cheong Enterprises Centre 宏昌企業中心

65-0069 Chai Wan Kok Street , Tsuen Wan, Hong Kong

Building Description

Wang Cheong Enterprises Centre is a 22-storey Strata Title Office Building. Wang Cheong Enterprises Centre is easily accessible with only 15 minute walk from the Tsuen Wan Station.

Building Profile

  • Building Number: 58124
  • Ownership: Strata Title
  • Usage: Office
  • Completion Year: 1996
  • Typical Floor Area: 0 sqft.
  • Total GFA: 0 sqft.
  • No. of Floor: 22
  • A/C System: Split
  • Ceiling Height: 11'5"
  • Floor Type:
  • Elevator: For Passenger: 3
    For Cargo: 0

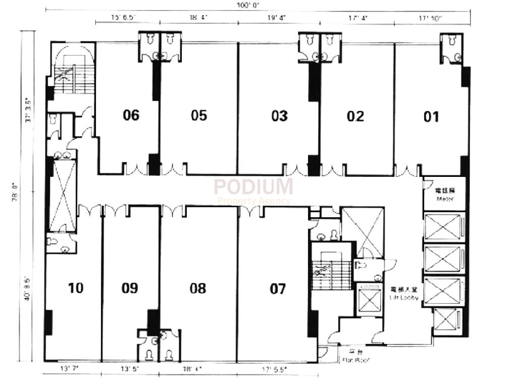
Floor Plan

(For identification only)
Wang Cheong Enterprises Centre

Map

Existing Listings

No listing found.

Nearby Buildings

Compare listings

Compare
Search

List Your Property

Property Information

Enquiry

Enquiry for: