List Your Property
`
Cheong Wah Commercial Building                               - Cheong Wah Commercial Building Photo.jpeg

Cheong Wah Commercial Building 昌華商業大廈

900-0904 Canton Road , Mong Kok, Hong Kong

Building Description

Cheong Wah Commercial Building is a 22-storey Strata Title Office Building. Cheong Wah Commercial Building is easily accessible with only 5 minute walk from the Yau Ma Tei Station. Cheong Wah Commercial Building is nearby King Centre , Commerce Tower.

Building Profile

  • Building Number: 55886
  • Ownership: Strata Title
  • Usage: Office
  • Completion Year: 1984
  • Typical Floor Area: 0 sqft.
  • Total GFA: 0 sqft.
  • No. of Floor: 22
  • A/C System:
  • Ceiling Height:
  • Floor Type:
  • Elevator: For Passenger: 2
    For Cargo: 0

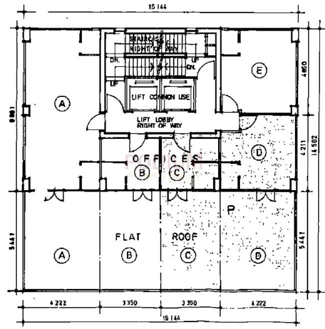
Floor Plan

(For identification only)
Cheong Wah Commercial Building                               - Cheong Wah Commercial Building Floor Plan.JPG

Map

Existing Listings

No listing found.

Nearby Buildings

Compare listings

Compare

Enquiry

Enquiry for: