List Your Property
`
Park Hovan Commercial Building                               - Park Hovan Commercial Building Photo.jpeg

Park Hovan Commercial Building ?豪商業大廈

18 Hillwood Road , Tsim Sha Tsui, Hong Kong

Building Description

Park Hovan Commercial Building is a 16-storey Strata Title Office Building. Park Hovan Commercial Building is easily accessible with only 9 minute walk from the Tsim Sha Tsui Station. Park Hovan Commercial Building is nearby Mira Place Tower A, Chuang's Londan Plaza , Austin Tower.

Building Profile

  • Building Number: 54807
  • Ownership: Strata Title
  • Usage: Office
  • Completion Year: 1990
  • Typical Floor Area: 0 sqft.
  • Total GFA: 0 sqft.
  • No. of Floor: 16
  • A/C System: Individual
  • Ceiling Height:
  • Floor Type:
  • Elevator: For Passenger: 1
    For Cargo: 0

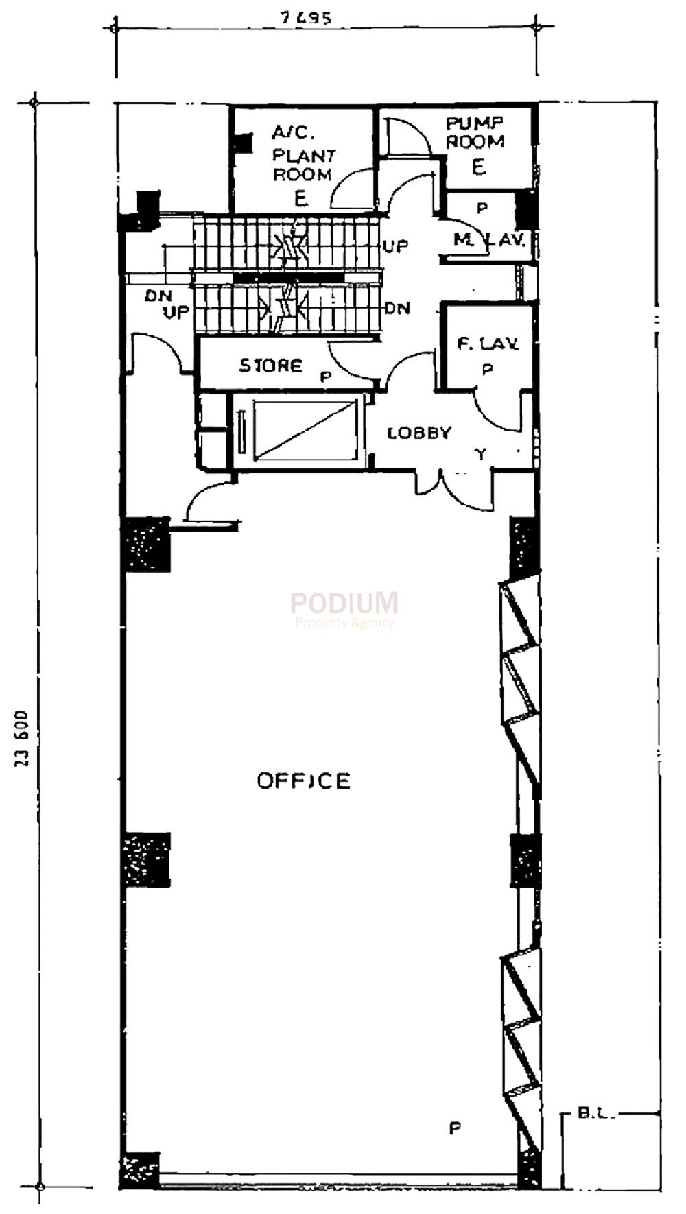
Floor Plan

(For identification only)
Park Hovan Commercial Building                               - Park Hovan Commercial Building Floor Plan.JPG

Map

Existing Listings

No listing found.

Nearby Buildings

Compare listings

Compare

List Your Property

Property Information

Enquiry

Enquiry for: