List Your Property
`
Kowloon Centre                                               - Kowloon Centre - Entrance.jpeg
Kowloon Centre                                               - Kowloon Centre - Photo.jpeg

Kowloon Centre 九龍中心

29-0039 Ashley Road , Tsim Sha Tsui, Hong Kong

Building Description

Kowloon Centre is a 15-storey Strata Title Office Building. Kowloon Centre is easily accessible with only 4 minute walk from the Tsim Sha Tsui Station. Kowloon Centre is nearby Silvercord Tower 1, Lippo Sun Plaza , Zhongda Building , Daily House.

Building Profile

  • Building Number: 54526
  • Ownership: Strata Title
  • Usage: Office
  • Completion Year: 1974
  • Typical Floor Area: 8,028 sqft.
  • Total GFA: 137,000 sqft.
  • No. of Floor: 15
  • A/C System: Central Chilled
  • Ceiling Height:
  • Floor Type:
  • Elevator: For Passenger: 4
    For Cargo: 1

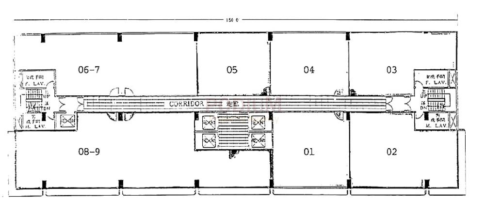
Floor Plan

(For identification only)
Kowloon Centre                                               - Kowloon Centre Floor Plan.JPG

Map

Existing Listings

No listing found.

Nearby Buildings

Compare listings

Compare

List Your Property

Property Information

Enquiry

Enquiry for: