List Your Property
`
726 Nathan Road - 726 Nathan Road_Photo.jpg

726 Nathan Road 彌敦道726號

726 Nathan Road , Prince Edward, Hong Kong

Building Description

726 Nathan Road is a 19-storey Strata Title Building.

Building Profile

  • Building Number: 53969
  • Ownership: Strata Title
  • Usage:
  • Completion Year: 2014
  • Typical Floor Area: 0 sqft.
  • Total GFA: 445,000 sqft.
  • No. of Floor: 19
  • A/C System: Individual
  • Ceiling Height:
  • Floor Type: Bare Cement
  • Elevator: For Passenger: 3
    For Cargo: 0

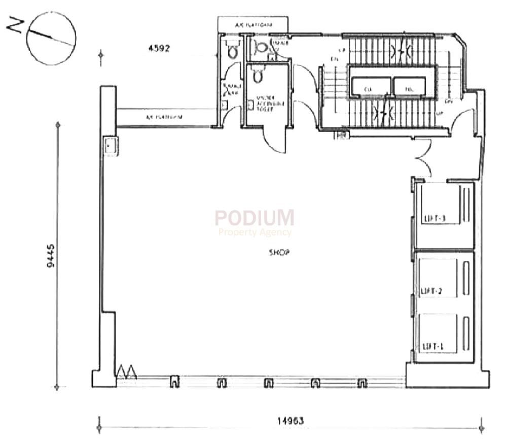
Floor Plan

(For identification only)
726 Nathan Road - 726 Nathan Road Floor Plan.JPG

Map

Existing Listings

No listing found.

Nearby Buildings

No listing found.

Compare listings

Compare
Search

Enquiry

Enquiry for: