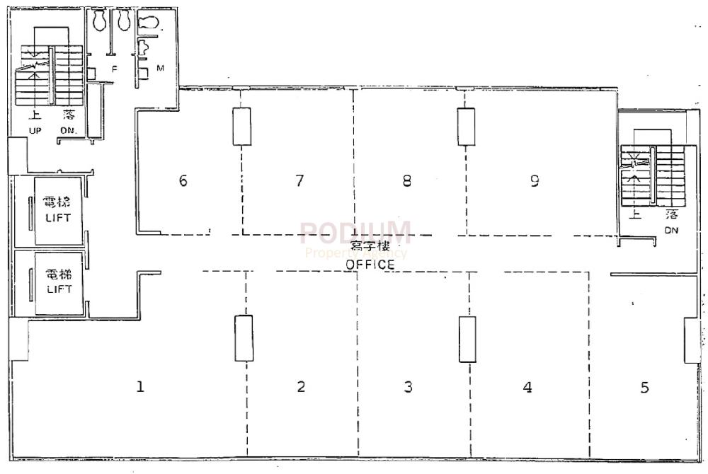
Summit Insurance Building is a 12-storey Strata Title Office Building. Summit Insurance Building is easily accessible with only 2 minute walk from the Prince Edward Station. Summit Insurance Building is nearby OfficePlus @Prince Edward.
No listing found.