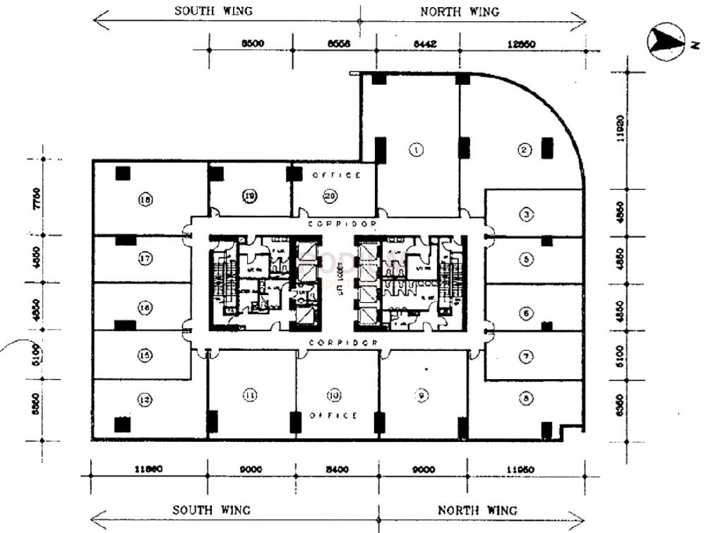
Tuen Mun Parklane Square is a 0-storey Strata Title Office Building. Tuen Mun Parklane Square is easily accessible with only 11 minute walk from the Tuen Mun Station. Tuen Mun Parklane Square is nearby Tuen Mun Central Square , Lane Up.
No listing found.