我想放盘
`
Metro Centre I - Metro Centre - Photo (2).jpg
Metro Centre I - Metro Centre II - Photo (2).jpg                                                                     Metro Centre I - Metro Centre II - Photo (2).jpg                                                                     Metro Centre I - Metro Centre II - Photo.jpg                                                                         Metro Centre I - Metro Centre II - Photo.jpg                                                                         Metro Centre I - Metro Centre II - Entrance.jpg                                                                      Metro Centre I - Metro Centre II - Entrance.jpg                                                                      Metro Centre I - Metro Centre - Entrance.jpg                                                                         Metro Centre I - Metro Centre - Entrance.jpg                                                                         Metro Centre I - Metro Centre - Photo.jpg

Metro Centre I 美羅中心1期

32 Lam Hing Street , Kowloon Bay, Hong Kong

大厦描述

美羅中心1期是一座位於九龍灣的商业大夏。是一幢分散业权的商业大夏,單位只供出租而不會出售。美羅中心1期毗鄰寶隆中心 , 開達大廈。. 從美羅中心1期步行至港鐵九龍灣站只需8分鐘。

大厦简介

  • 大厦编号: 71410
  • 业权: 分散业权
  • 用途: 法国
  • 落成年份: 1991
  • 标准楼层面积: 590 - 18,580 sqft.
  • 总楼面面积: 464,500 sqft.
  • 楼层数目: 16
  • 冷气: 独立冷气
  • 天花板的高度:
  • 地板类型: 水泥地
  • 电梯: 乘客人数:2
    For Cargo: 4

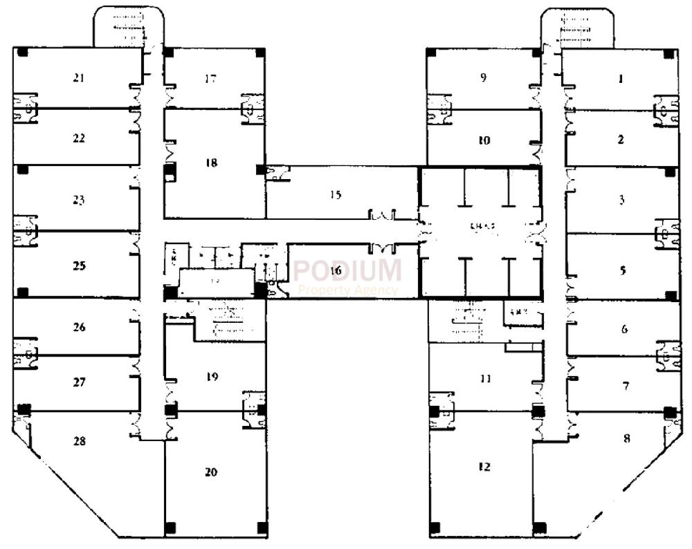
平面图

(仅供识别)
Metro Centre I - Metro Centre I Floor Plan.JPG

地图

现有房源

附近的大厦

Compare listings

Compare

询问

询问: