出租你的物業
`
Gravity - Gravity - Photo.jpg
Gravity - Gravity - Photo.jpg

重力 重力

29 Hing Yip Street , Kwun Tong, Hong Kong

建築物描述

Gravity是一座位於觀塘的商業大夏。是一幢統一業權的商業大夏,單位只供出租而不會出售。Gravity毗鄰萬兆豐中心 , 宏基資本大廈 , 海濱中心 , 航天科技中心 , 絲寶國際大廈。. 從Gravity步行至港鐵觀塘站只需7分鐘。

大夏簡介

  • 大廈編號: 72233
  • 業權: 統一業權
  • 用途: 商業
  • 落成年份: 2018
  • 標準樓層面積: 1,120 - 4,680 sqft.
  • 總樓面面積: 100,000 sqft.
  • 樓層數目: 33
  • 冷氣: 分離式冷氣
  • 天花板的高度:
  • 地板類型: 海拔台
  • 電梯: 乘客人數:4
    貨運:1

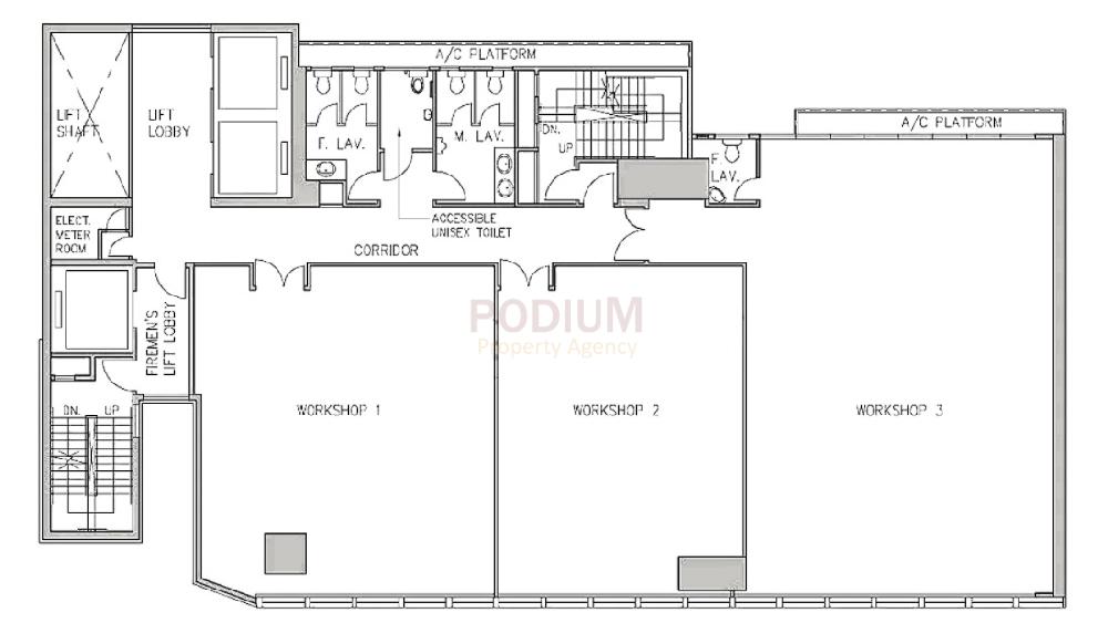
平面圖

(僅供識別)
Gravity

地圖

現有放盤

附近的物業

Compare listings

Compare

詢問

查詢: