出租你的物業
`
Carnarvon Plaza                                              - Carnavon Plaza - Photo.jpg
Carnarvon Plaza                                              - Carnavon Plaza - Photo.jpg                                                                          Carnarvon Plaza                                              - Carnavon Plaza - Photo.jpg

Carnarvon Plaza 加拿芬廣場

20 Carnarvon Road , Tsim Sha Tsui, Hong Kong

建築物描述

加拿芬廣場 是一座位於尖沙咀的商業大夏。是一幢統一業權的商業大夏,單位只供出租而不會出售。加拿芬廣場 毗鄰恆生尖沙咀大廈, 金馬倫廣場。. 從加拿芬廣場 步行至港鐵尖沙咀站只需4分鐘。

大夏簡介

  • 大廈編號: 54618
  • 業權: 統一業權
  • 用途: 商業
  • 落成年份: 1990
  • 標準樓層面積: 7,760 sqft.
  • 總樓面面積: 84,000 sqft.
  • 樓層數目: 16
  • 冷氣: 中央冷氣
  • 天花板的高度: 7'0"
  • 地板類型: 水泥地
  • 電梯: 乘客人數:3
    貨運:1

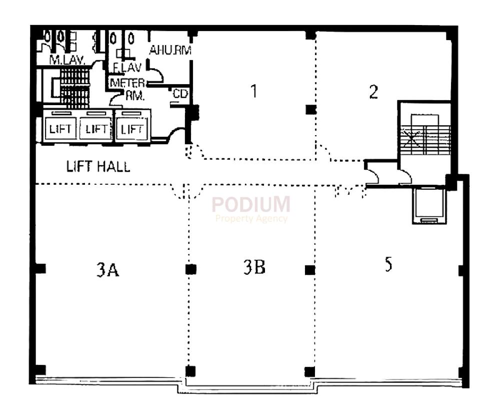
平面圖

(僅供識別)
Carnarvon Plaza                                              - Carnarvon Plaza Floor Plan.JPG

地圖

現有放盤

No listing found.

附近的物業

Compare listings

Compare

詢問

查詢: