出租你的物業
`
Kai Wong Commercial Building                                 - Kai Wong Commercial Building - Photo.jpg

Kai Wong Commercial Building 啟煌商業大廈

49-0051A Gough Street , Sheung Wan, Hong Kong

物業描述

啟煌商業大廈 是一座位於上環的商業大夏。是一幢分散業權的商業大夏,單位只供出租而不會出售。啟煌商業大廈 毗鄰299QRC, 永業中心 , 太興中心第一座, 太興中心第二座, 富輝商業中心。. 從啟煌商業大廈 步行至港鐵上環站只需5分鐘。

建築簡介

  • 大廈編號: 12486
  • 業權: 分散業權
  • 用途: 商業
  • 落成年份: 1986
  • 標準樓層面積: 2,100 平方英尺。
  • 總樓面面積: 44,500 sqft.
  • 樓層數目 : 19
  • 冷氣: 獨立冷氣
  • 地台類型: 7'10"
  • 地板類型: 水泥地
  • 電梯: 乘客人數:2
    For Cargo: 0

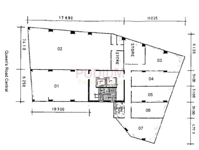
平面圖

(僅供識別)
Kai Wong Commercial Building                                 - Kai Wong Commercial Building - Floor Plan.jpg

地圖

現有放盤

未找到列表。

附近的物業

比較列表

比較
搜尋

出租你的物業

物業資訊

詢問

查詢: