(Property ID# 75772)
Welcome to Kowloon’s rising commercial engine. Kowloon Plaza delivers massive scale, industrial-grade infrastructure, and MTR-doorstep access — all in a strata-titled I/O building perfect for logistics, e-commerce, design studios, or back-office operations. With our exclusive listing, secure your unit before Kowloon’s industrial boom prices you out.
Interior


Roof Top


Property Details:
- Availability: Immediate
- Size: 3,631 sf gross with additional 2,993′ Roof Top
- Asking for Sale / For Lease
- Condition: Fully Fitted Condition

Kowloon Plaza: Industrial Power Meets Kowloon Connectivity
Located at 485 Castle Peak Road, Cheung Sha Wan (Lai Chi Kok), this 19-storey strata-titled I/O powerhouse offers a massive total GFA of approximately 230,000 sq ft, with generous typical floors up to 11,828 sq ft—ideal for logistics, offices, or light industrial needs.
Standout Amenities:
- Split-type A/C for flexible, cost-effective cooling.
- Robust lift system: 2 passenger + 3 cargo lifts for heavy-duty efficiency.
- 3.2m high ceilings and bare cement floors—ready for your vision.
- Dedicated loading/unloading zone and public carpark.
- Multiple ownership with Sino Estates Management—diverse unit options from 569-978 sq ft for sale/lease.
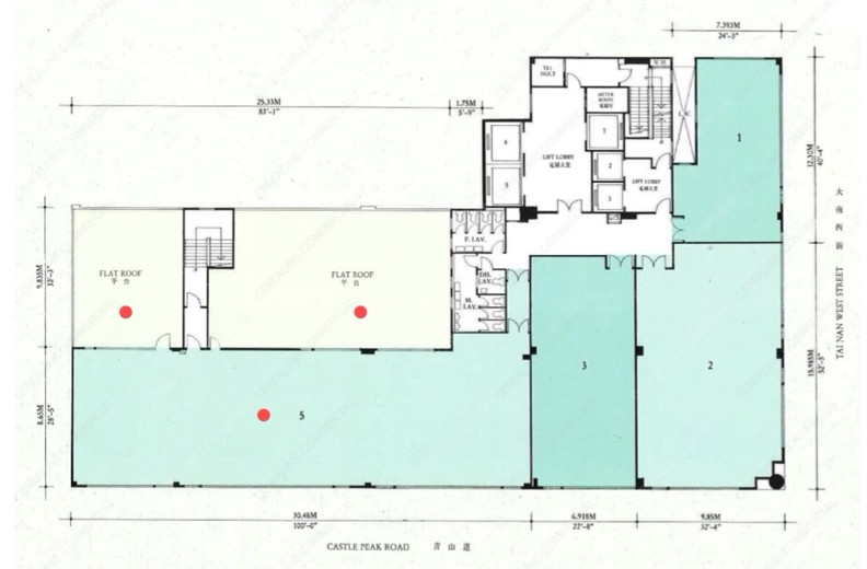
平面圖

Strategic Location Highlights:
- Ultra-convenient: 3-minute walk to Lai Chi Kok MTR (Exit B1)—link to West Kowloon, airport, and beyond.
- Surrounded by Grade A neighbours like Excel Centre, Laws Commercial Plaza, and Cheung Sha Wan Plaza.
- Proximity to hotels, malls (e.g., Pacifica Mall), and wholesale markets—endless business synergy!
Prime Investment Alert: Competitive rents (~HK$21-26 psf) and management fees (~HK$2.10 psf) make Kowloon Plaza a high-yield standout in Kowloon’s industrial renaissance.
Your Exclusive Edge—Act Today!
These aren’t just buildings—they’re your launchpad to success in Hong Kong’s top districts. With our exclusive mandate, enjoy priority viewings, tailored terms, and insider intel.
Contact us NOW for floor plans, site visits, or bespoke proposals: